$625,000
$649,000
3.7%For more information regarding the value of a property, please contact us for a free consultation.
3 Beds
3 Baths
2,052 SqFt
SOLD DATE : 12/09/2025
Key Details
Sold Price $625,000
Property Type Manufactured Home
Sub Type Manufactured-Owned Lot
Listing Status Sold
Purchase Type For Sale
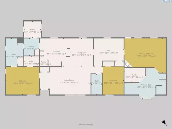
Square Footage 2,052 sqft
Price per Sqft $304
Subdivision Short Plat
MLS Listing ID 287361
Sold Date 12/09/25
Bedrooms 3
Full Baths 3
HOA Y/N No
Year Built 1997
Annual Tax Amount $655
Lot Size 5.000 Acres
Acres 5.0
Property Sub-Type Manufactured-Owned Lot
Property Description
MLS# 287361 If you have been dreaming of wide-open space, room for animals, and a country lifestyle that keeps you close to town, this is it. On 5 park-like acres of usable land, you will find everything set up and ready to go. The property features fenced and cross-fenced pastures perfect for horses, cows, goats, or whatever critters you call family. A barn and multiple outbuildings provide feed storage, shelter, and workspace, while a 2-bay shop and large covered RV barn give you plenty of space for vehicles, boats, equipment, or even more animal care. This property is designed for both work and play. The home itself offers 3 bedrooms, 3 bathrooms, and a flexible bonus room currently used as a home office. Inside, the layout is warm and comfortable. Step outside and you will find room to ride, entertain, or simply relax while your animals graze nearby. The fenced backyard adds extra privacy and security for pets, kids, or outdoor gatherings. And when you are ready for a change of pace, you're just minutes from local wineries and an easy drive into the Tri-Cities for shopping, dining, and entertainment. What makes this property special: 5 acres of usable land. Fenced & cross-fenced pastures. Barn & outbuildings for animals and storage. 2-bay shop + large covered RV barn. 3 bed / 3 bath home with flex office space. Peaceful country living, close to town. Minutes to Freeway. Possible boarding or hobby farm opportunities. If you're ready for a little more land, a lot more freedom, and an oasis that your animals will love as much as you do — this is the one!
Location
State WA
County Us
Interior
Flooring Carpet, Laminate, Tile
Fireplaces Number 1
Fireplaces Type 1, Master Bedroom, Propane
Fireplace Yes
Window Features Window Coverings,Windows - Vinyl
Appliance Appliances-Electric, Dishwasher, Disposal, Range/Oven, Refrigerator, Water Softener Owned
Laundry Laundry Room
Exterior
Exterior Feature Lighting, Set-up for Livestock, Irrigation
Parking Features Detached, Off Street, RV Access/Parking, Workshop in Garage, 3 car
Garage Spaces 3.0
View Y/N Yes
Street Surface Gravel
Porch Deck, Patio
Road Frontage Private Road
Garage Yes
Building
Story 1
Sewer Septic Tank
Water Private
Others
Acceptable Financing Exclusive Right
Listing Terms Exclusive Right
Read Less Info
Want to know what your home might be worth? Contact us for a FREE valuation!

Our team is ready to help you sell your home for the highest possible price ASAP
GET MORE INFORMATION

Broker Associate | License ID: 0785166 and 119997







